
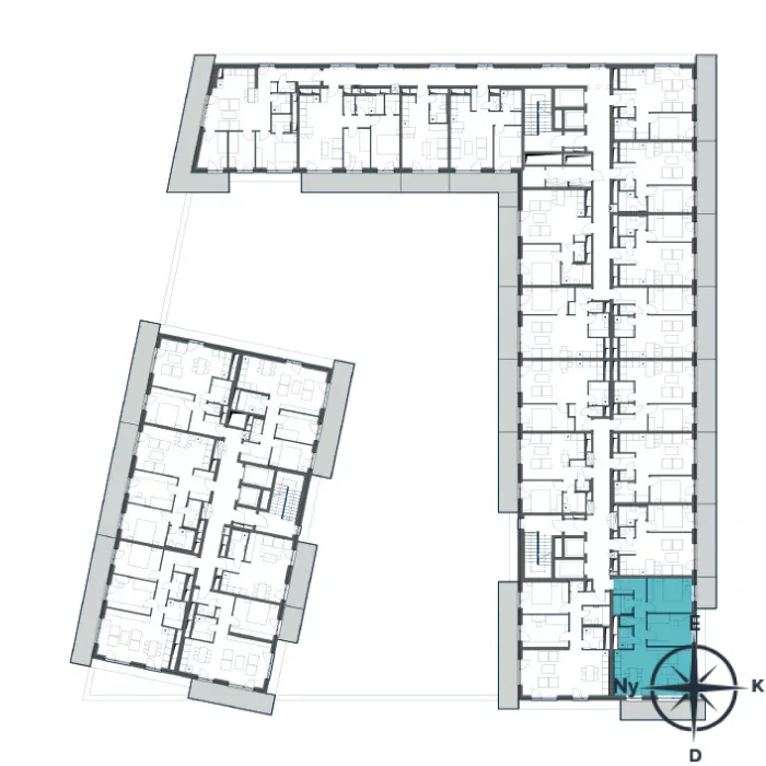
BRK_A.03.06 | 73.52 m2 | 3 | 3. | Délkeleti |
![]() |
| Alapterület | 73,52 m2 |
| Erkély | 18,84 m2 |
| 1. ELŐTÉR | 4.14 m2 |
| 2. KÖZLEKEDŐ | 5.41 m2 |
| 3. SZOBA | 12.93 m2 |
| 4. SZOBA | 12.11 m2 |
| 5. NAPPALI | 22.33 m2 |
| 6. KONYHA | 10.09 m2 |
| 7. FÜRDŐ | 2.95 m2 |
| 8. WC | 1.03 m2 |
| 9. FÜRDŐ | 2.53 m2 |
1117 Budapest, Kopaszi-gát 1.
(időpont egyeztetés szükséges)
H-P: 09:00-18:00
Ettől eltérő időpont egyeztethető.