
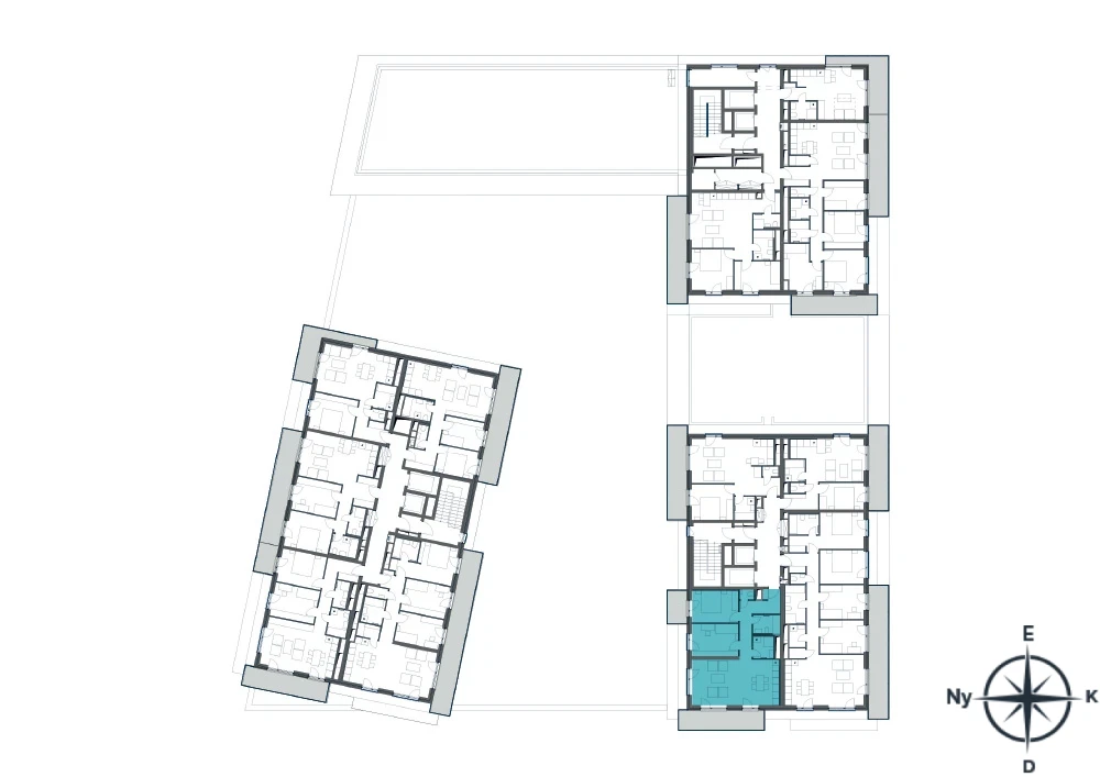
BRK_A.07.04 | 77 m2 | 3 | 7. | Délnyugati |
![]() |
| Alapterület | 77,00 m2 |
| Erkély | 19,51 m2 |
| 1. ELŐTÉR | 4.7 m2 |
| 2. FÜRDŐ | 4.06 m2 |
| 3. FÜRDŐ | 3.6 m2 |
| 4. KONYHA | 9.22 m2 |
| 5. NAPPALI | 24.13 m2 |
| 6. SZOBA | 12.26 m2 |
| 7. SZOBA | 12.26 m2 |
| 8. WC | 1.13 m2 |
| 9. KÖZLEKEDŐ | 5.64 m2 |
1117 Budapest, Kopaszi-gát 1.
(időpont egyeztetés szükséges)
H-P: 09:00-18:00
Ettől eltérő időpont egyeztethető.