
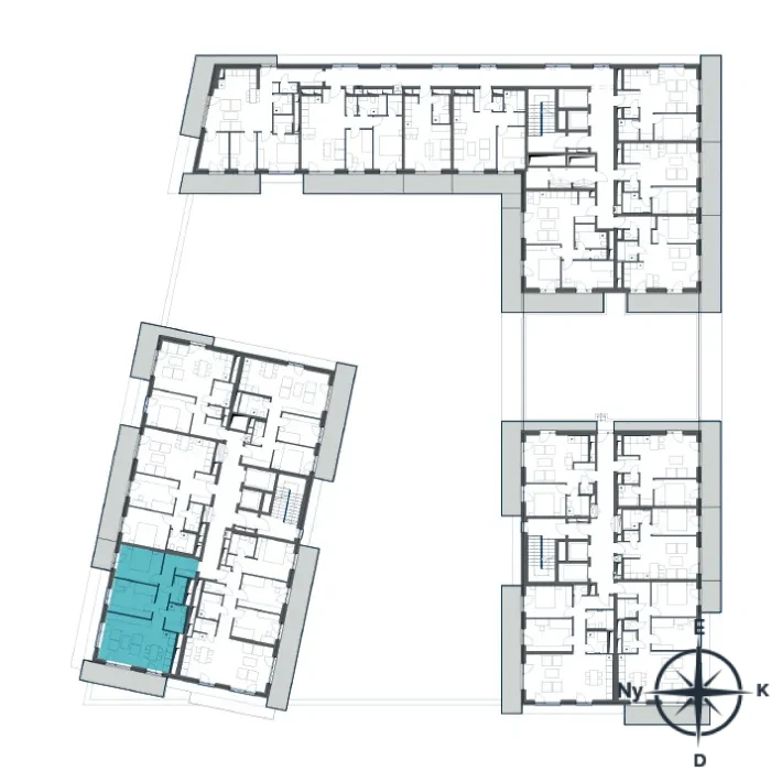
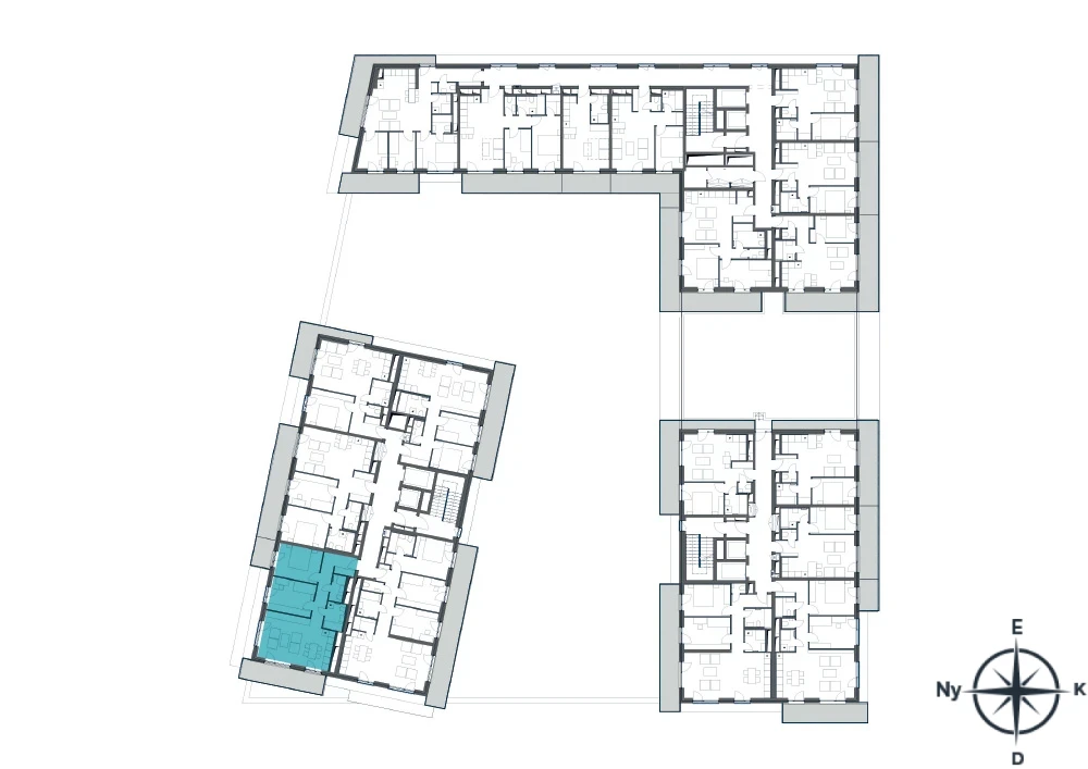
BRK_C.04.02 | 70.26 m2 | 3 | 4. | Nyugati |
![]() |
| Alapterület | 70,26 m2 |
| Erkély | 18,82 m2 |
| 1. ELŐTÉR | 3.42 m2 |
| 2. FÜRDŐ | 2.72 m2 |
| 3. FÜRDŐ | 4.18 m2 |
| 4. KONYHA | 7.67 m2 |
| 5. NAPPALI | 20.98 m2 |
| 6. SZOBA | 12.31 m2 |
| 7. SZOBA | 12.31 m2 |
| 8. KÖZLEKEDŐ | 6.67 m2 |
1117 Budapest, Kopaszi-gát 1.
(időpont egyeztetés szükséges)
H-P: 09:00-18:00
Ettől eltérő időpont egyeztethető.