
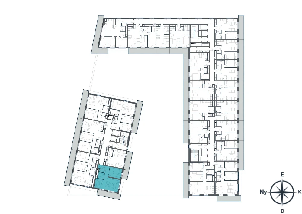
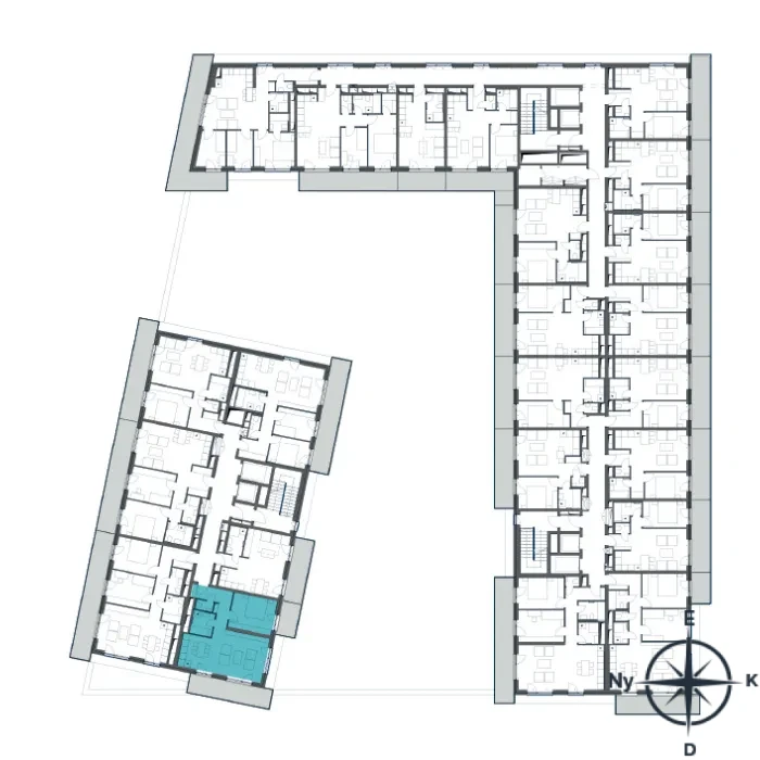
BRK_C.03.02 | 57.08 m2 | 2 | 3. | Southeast |
| Size | 57,08 m2 |
| Balcony | 19,37 m2 |
| 1. Entrance hall | 3.45 m2 |
| 2. Hallway | 4.13 m2 |
| 3. Room | 13.23 m2 |
| 4. Living room | 22.65 m2 |
| 5. Kitchen | 8.56 m2 |
| 6. Bathroom | 4.04 m2 |
| 7. Toilet | 1.4 m2 |
(date must be arranged)
M-F: 09:00-18:00
A different time can be arranged.