
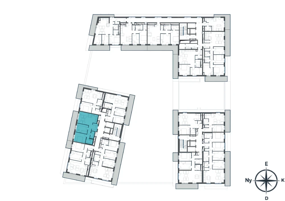
BRK_C.05.03 | 69.09 m2 | 3 | 5. | Nyugati |
| Size | 69,09 m2 |
| Balcony | 19,48 m2 |
| 1. ELŐTÉR | 5.24 m2 |
| 2. FÜRDŐ | 3.06 m2 |
| 3. FÜRDŐ | 4.43 m2 |
| 4. SZOBA | 12.31 m2 |
| 5. SZOBA | 13.23 m2 |
| 6. NAPPALI | 19.03 m2 |
| 7. KONYHA | 7.09 m2 |
| 8. KÖZLEKEDŐ | 4.7 m2 |
(date must be arranged)
+36 1 701 3989
M-F: 09:00-18:00
A different time can be arranged.