
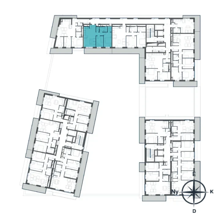
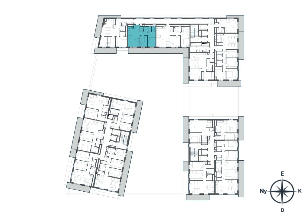
BRK_B.06.02 | 59.42 m2 | 3 | 6. | South |
![]() |
| Size | 59,42 m2 |
| Balcony | 16,83 m2 |
| 1. Entrance hall | 3.19 m2 |
| 2. Toilet | 1.6 m2 |
| 3. Bathroom | 4.22 m2 |
| 4. Wardrobe | 2.37 m2 |
| 5. Room | 12.37 m2 |
| 6. Room | 8.75 m2 |
| 7. Hallway | 2.75 m2 |
| 8. Living room | 17.84 m2 |
| 9. Kitchen | 6.33 m2 |
(date must be arranged)
M-F: 09:00-18:00
A different time can be arranged.